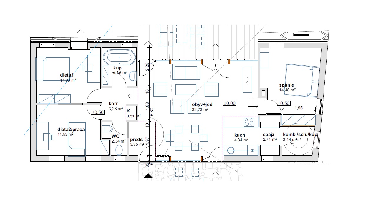
53 podorys